Nhà hàng nướng Hàn Quốc không chỉ thu hút thực khách bởi hương vị đặc trưng của các món nướng, mà còn ở trải nghiệm không gian – nơi cảm xúc ẩm thực được khơi gợi từ ánh sáng, chất liệu và bố cục nội thất. Với đặc thù mô hình nướng tại bàn, việc thiết kế nhà hàng nướng Hàn Quốc đòi hỏi sự tính toán kỹ lưỡng giữa thẩm mỹ – công năng – an toàn, nhằm đảm bảo không gian vừa đẹp, vừa thuận tiện cho vận hành.
Thiết kế nhà hàng nướng Hàn Quốc
Đặc Trưng Thiết Kế Của Nhà Hàng Nướng Hàn Quốc
Khi triển khai thiết kế, Compa Decor luôn chú trọng ba yếu tố cốt lõi sau:
- Phong cách nội thất đậm chất Hàn nhưng phù hợp thị hiếu Việt
- Tông màu sáng, trung tính (be, nâu nhạt, trắng xám) kết hợp ánh sáng ấm giúp tạo cảm giác gần gũi và sạch sẽ.
- Chất liệu chủ đạo là gỗ, đá, kim loại mạ kết hợp đèn trang trí nhẹ mang lại vẻ hiện đại nhưng vẫn giữ nét truyền thống Hàn Quốc tinh tế.
Thiết kế nhà hàng nướng Hàn Quốc
- Thiết kế ánh sáng và không gian trải nghiệm
Ánh sáng là yếu tố tạo nên cảm xúc cho toàn bộ không gian.
Trong thiết kế nhà hàng nướng Hàn Quốc, Compa Decor chú trọng việc phối hợp giữa ánh sáng tự nhiên và ánh sáng nhân tạo, tạo nên bầu không khí ấm cúng nhưng vẫn thoáng đãng, hiện đại.
- Ánh sáng vàng ấm được sử dụng tập trung tại khu vực bàn ăn, giúp món nướng trông hấp dẫn hơn và mang lại cảm giác gần gũi.
- Hệ thống đèn trang trí được bố trí theo nhịp kiến trúc, kết hợp chất liệu kim loại hoặc gỗ để tạo điểm nhấn thẩm mỹ.
- Ở những không gian lớn, Compa Decor thiết kế ánh sáng phân tầng, vừa đảm bảo đủ sáng khi phục vụ, vừa giữ được chiều sâu và cảm xúc đặc trưng của phong cách Hàn.
Sự cân bằng giữa ánh sáng, màu sắc và vật liệu giúp không gian vừa đẹp mắt, vừa gợi mở cảm giác thư giãn, khiến thực khách muốn ở lại lâu hơn và quay lại nhiều lần.
Thiết kế nhà hàng nướng Hàn Quốc
- Bố trí không gian khoa học – tăng hiệu quả phục vụ
- Mặt bằng được phân chia hợp lý giữa khu ăn uống, khu bếp, kho chứa và lối di chuyển nhân viên.
- Các bàn nướng được sắp xếp có tính toán, vừa đảm bảo riêng tư cho khách, vừa giúp nhân viên phục vụ nhanh chóng và thuận tiện trong giờ cao điểm.
Thiết kế nhà hàng nướng Hàn Quốc
- Giải Pháp Thiết Kế Nội Thất Nhà Hàng Nướng Hàn Quốc Tông Sáng
Xu hướng hiện nay là những không gian sáng, hiện đại, mang lại cảm giác rộng và sang trọng. Một số giải pháp được Compa Decor ứng dụng hiệu quả trong nhiều dự án:
- Trần trắng, tường sáng hoặc ốp gỗ nhạt màu tạo không gian mở, dễ chịu.
- Ánh sáng vàng nhẹ giúp không gian ấm cúng và kích thích vị giác.
- Chất liệu kính, kim loại sáng màu phản chiếu ánh sáng tự nhiên, giảm cảm giác bí bách.
- Điểm nhấn trang trí như tường gạch, họa tiết Hàn, hoặc logo thương hiệu giúp không gian có chiều sâu và bản sắc riêng.
Thiết kế nhà hàng nướng Hàn Quốc
- Lợi Ích Khi Thiết Kế Nhà Hàng Nướng Hàn Quốc Chuyên Nghiệp
- Tối ưu trải nghiệm khách hàng, tạo cảm giác thoải mái và ấn tượng khi thưởng thức món ăn.
- Đảm bảo công năng sử dụng, giúp vận hành mượt mà và tiết kiệm chi phí.
- Tăng giá trị thương hiệu, xây dựng hình ảnh nhà hàng chuyên nghiệp, khác biệt trên thị trường.
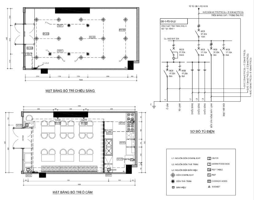
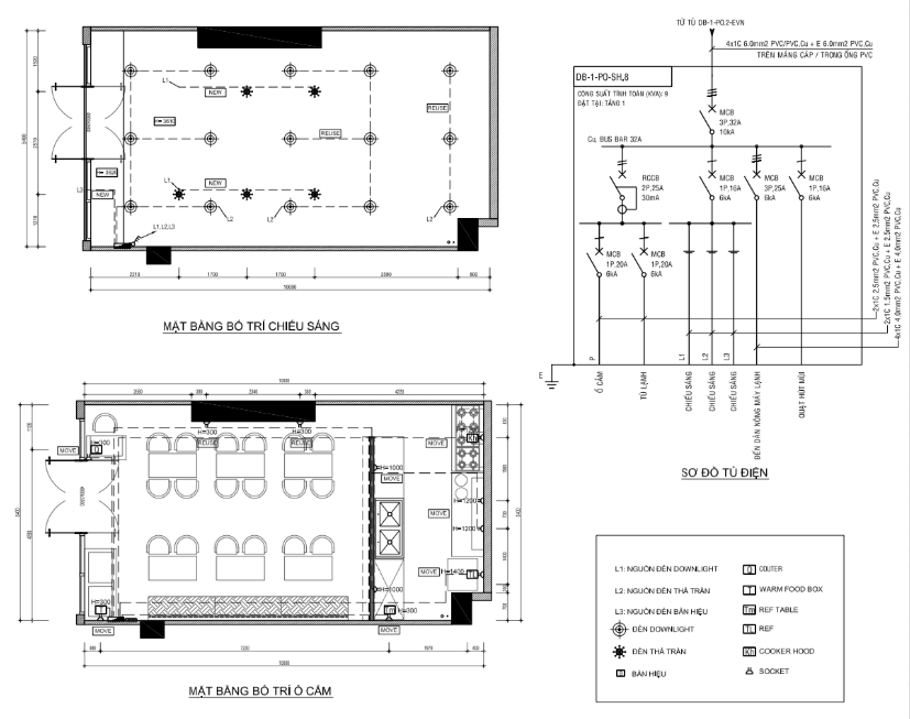
Bản vẽ thiết kế nhà hàng nướng Hàn Quốc
Bản vẽ thiết kế nhà hàng nướng Hàn Quốc
Bản vẽ thiết kế nhà hàng nướng Hàn Quốc
Thiết kế nhà hàng nướng Hàn Quốc là sự kết hợp tinh tế giữa nghệ thuật và kỹ thuật, đòi hỏi đơn vị thiết kế hiểu rõ đặc thù của mô hình nướng tại bàn.
Compa Decor với kinh nghiệm trong lĩnh vực thiết kế nội thất cam kết mang đến giải pháp không gian thẩm mỹ, khoa học và khác biệt, giúp chủ đầu tư nâng tầm thương hiệu và tối ưu trải nghiệm khách hàng.
CÔNG TY TNHH THƯƠNG MẠI XÂY DỰNG TRANG TRÍ NỘI THẤT COMPA
Văn phòng: 120/5Bis Nguyễn Văn Đậu , Phường 07, Quận Bình Thạnh, TPHCM
Xưởng: 9B Đường 40, P.Hiệp Bình Chánh, Thủ Đức
Website: http://trangtrinoithatcompa.com/
Hotline: 0937 299 677 - 028 627 2896
Email: cty.compa@gmail.com
Xem thêm các mẫu nhà hàng khác:
>> Xem thêm tại đây: Thiết kế nhà hàng Trần Mão
--------------------------------------------------------------------------------------------------
#Compa_Decor #Thiet_Ke_Nha_Hang #Thi_Cong_Nha_Hang #Thiet_Ke_Nha_Hang_Han_Quoc #Nha_Hang_Han_Quoc







