Phong cách: Công nghiệp.
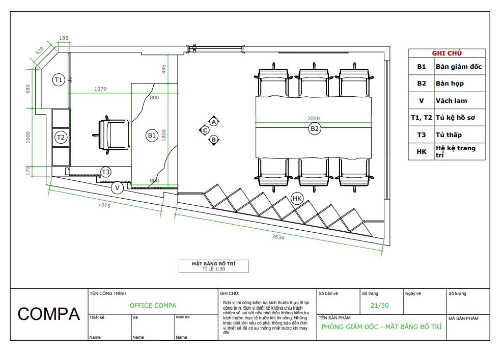
Điểm đặc biệt: Binh bố mặt văn phòng nhỏ với diện tích 30m2 cho 1 khu nhân viên và 1 phòng họp kết hợp với phòng giám đốc
Hôm nay, Compa Décor sẽ giới thiệu đến các bạn diện mạo mới của văn phòng công ty chúng tôi. Nhằm mang đến cho khách hàng không gian làm việc cùng công ty một cách chuyên nghiệp, hiện đại và tin cậy nhất, Compa đã thi công lại văn phòng với mặt bẳng 30m2, 1 khu nhân viên và 1 phòng giám đốc kết hợp phòng họp.
Mặt bằng văn phòng này, hiện trạng cũ là 1 nhà xéo 2 hướng. Cái khéo của KTS là xử lý cái xéo đó cho thật thẩm mĩ và tối ưu hóa diện tích không gian. Nhìn vào mặt bằng khu văn phòng thấy được sự bố trí tỉ mỉ từng công năng của căn phòng theo diện tích mặt bằng. Mặt bằng tuy có xéo nhưng nó vẫn được tận dụng hết những điểm yếu của nó thành các khu lưu trữ tài liệu độc đáo nhất.
Mặt bằng phòng giám đốc được thiết kế đơn giản và được bố trí những mẫu đố nội thất phù hợp nhất. Sự kết hợp hoàn hảo giữa phòng giám đốc và phòng họp giúp cho nhân viên và giám đốc gần gũi nhau hơn.
Bản thiết kế và thi công văn phòng Compa không có gì khác biệt. Với một đơn vị chuyên thiết kế và thi công nội thất thì việc thi công làm sao cho bản vẽ và thực tế giống nhau là điều mà một người KTS phải biết, khi thiết kế muốn đặt một mẫu đồ nội thất nào thì cũng phải biết răng xưởng của mình có làm được không để thay đổi cho phù hợp với chất liệu mà xưởng có.
Sự thoải mái, tối ưu hóa công năng, bố trí ánh sáng, tông màu giúp cho văn phòng trở nên rộng hơn, cảm giác người sử dụng thoải mái hơn khi ngồi tại đây.
Nội thất: điểm đặc biệt của Hệ kệ sách 2 mặt, đây là 1 giải pháp vừa là vách trang trí, trưng bày mẫu của cty vừa xử lý được góc xéo của hiện trạng nhà cũ. Với chất liệu gỗ công nghiệp, việc trang trí cho những không gian nhỏ chính là ưu điểm của nó.
Nội thất văn phòng Compa sử dụng chất liệu gỗ công nghiệp An Cường là chính. Bởi màu sắc, phong cách thiết kế chỉ có gỗ công nghiệp mới có, bên cạnh đó gỗ công nghiệp cũng giúp cho không gian làm việc nhẹ nhàng, mềm mại không quá cứng cáp như gỗ tự nhiên.
Nhìn vào không gian làm việc của nhân viên ta cũng cảm thấy được một không gian làm việc đầy chuyên nghiệp, có đầy đủ các mẫu tủ kệ, ánh sáng được bố trí với các mẫu đèn trang trí sinh động.
Bên cạnh không gian làm việc thì vẫn có một góc thư giãn riêng cho nhân viên đó là một hốc tường làm thác nước thẳng, trang trí bằng đá, sỏi tinh tế, cùng với đó là những chậu cây hoa trang trí đem lại không gian thư giãn tuyệt vời cho nhân viên.
Thi công không gian phòng họp cao cấp với chiếc bàn học bằng gỗ tự nhiên. 2 tấm gỗ dày kết hợp thành một chiếc bàn họp sinh động, những đường vân của gỗ còn mới và hình cong lượn sóng của cây dường như không bị xóa. Ghép 2 tấm gỗ thành một chiếc bàn dài, ở giữa đặt những chậu cây cảnh nhỏ xinh khiến cho không gian họp không còn căng thẳng nữa.
Như vậy với không gian văn phòng rộng 30m2 này bạn cũng đã có được những khu vực đầy công năng như mình mong muốn. Nếu đang phân vân không biết với diện tích mặt bằng nhỏ liệu có bố trí được một văn phòng làm việc chuyên nghiệp được không thì hãy đến với Compa nhé, chúng tôi sẽ giúp bạn thiết kế và thi công ra một khu văn phòng chuyên nghiệp, thể hiện thương hiệu mà vẫn đầy đủ công năng cho nhân viên và giám đốc.
Bạn cần báo giá hãy bấm vào link: Báo giá
Xem nhiều mẫu thiết kế nhà hơn nữa bấm vào link: Mẫu thiết kế
Tham khảo về kinh nghiệm thi công nội thất, bấm vào link: Cẩm nang chia sẻ
Bạn có thể liên hệ đến Trang trí nội thất Compa qua địa chỉ:
CÔNG TY TNHH THƯƠNG MẠI XÂY DỰNG TRANG TRÍ NỘI THẤT COMPA
Văn phòng: 120/5Bis Nguyễn Văn Đậu, Phường 7, Quận Bình Thạnh, HCM
Xưởng: 9B Đường 40, P.Hiệp Bình Chánh, Thủ Đức
Hotline: 0937 299 677 - 028 627 2896
Email: cty.compa@gmail.com
Hotline: 0937299677
--------------------------------------------------------------------------------------
#Compa_Decor #Thiet_Ke_Van_Phong #Thi_Cong_Van_Phong #Noi_That_Van_Phong #Van_Phong_Dep #Van_Phong_Chuyen_Nghiep #Van_Phong_30m2 #Thiet_Ke_Noi_That #Thi_Cong_Noi_That








