- Tên Dự án: VILLA THE SOL
- Lĩnh vực: Nhà phố, villa
- Hạng mục thi công: Thi công, thiết kế, trang trí nội thất
Villa The Sol được định hình như một không gian sống mang tinh thần hiện đại – thanh lịch, nơi mọi chi tiết đều hướng đến sự cân bằng giữa thẩm mỹ và trải nghiệm.
Ngay từ khu vực phòng khách, không gian mở với trần cao, ánh sáng tự nhiên và bảng màu trung tính tạo cảm giác rộng rãi, nhẹ nhàng nhưng vẫn sang trọng. Các đường nét thiết kế tối giản kết hợp vật liệu cao cấp như đá, gỗ và kim loại giúp tổng thể trở nên tinh tế mà không phô trương.
Không gian không chỉ đẹp ở hình thức, mà còn được tổ chức để phục vụ đúng cách sống của gia chủ — thoải mái, thư giãn và có chiều sâu cảm xúc.

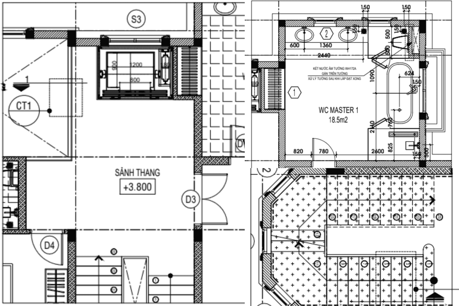
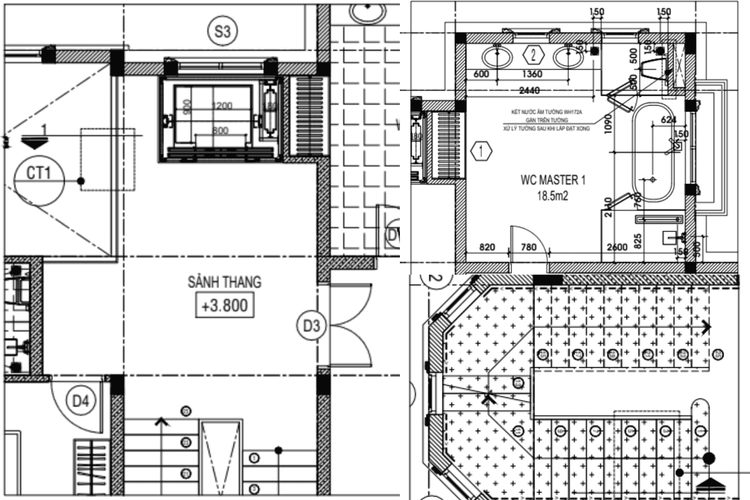
Ảnh 1: Bản vẽ 2D công trình

Ảnh 2: Phối cảnh thiết kế phòng khách

Ảnh 3: Phối cảnh thiết kế phòng ngủ
*KẾT QUẢ CUỐI CÙNG
Từ một mặt bằng ban đầu, Villa The Sol đã được hoàn thiện thành một không gian sống đồng nhất, nơi mọi khu vực đều liên kết chặt chẽ với nhau:
- Phòng khách: rộng mở, ánh sáng tự nhiên kết hợp ánh sáng gián tiếp tạo nên cảm giác ấm cúng và sang trọng
- Phòng ngủ: thiết kế tối giản, sử dụng vật liệu êm dịu giúp tối ưu trải nghiệm nghỉ ngơi
- Phòng tắm: không gian như một “spa tại gia” với đá vân mây, bồn tắm độc lập và ánh sáng nhẹ
- Khu bếp: hiện đại, gọn gàng, tối ưu công năng nhưng vẫn giữ được tính thẩm mỹ cao
- Khu giao thông & cầu thang: trở thành điểm nhấn với vật liệu đá và ánh sáng, tạo cảm giác liền mạch giữa các tầng
Toàn bộ công trình được triển khai theo hướng:
- Tối ưu công năng sử dụng cho sinh hoạt hằng ngày
- Duy trì tính thẩm mỹ bền vững theo thời gian
- Tạo cảm giác sống “dễ chịu” thay vì chỉ “đẹp để nhìn”
Villa The Sol không chỉ là một ngôi nhà hoàn thiện, mà là một không gian sống được tính toán kỹ lưỡng — nơi mỗi chi tiết đều góp phần tạo nên một trải nghiệm sống trọn vẹn và lâu dài.
👉 Xem chi tiết dự án tại:
- Thi công nội thất nhà phố: TẠI ĐÂY
- Thi công công trình giải trí: TẠI ĐÂY
📩 Nhận tư vấn thiết kế & thi công trọn gói
-----------
CÔNG TY TNHH THƯƠNG MẠI XÂY DỰNG TRANG TRÍ NỘI THẤT COMPA
Văn phòng & xưởng: 9B Đường 40, P.Hiệp Bình Chánh, Thủ Đức
Website: http://trangtrinoithatcompa.com/
Hotline: 0937 299 677 - 028 627 2896
Email: cty.compa@gmail.com