-
Tên Dự án: HOME DŨNG MAXO
-
Lĩnh vực: Biệt thự, nhà phố, villa,
-
Hạng mục thi công: Thi công, thiết kế, trang trí nội thất
Home Dũng Maxo được định hình là một không gian sống hiện đại, nơi sự tinh gọn trong thiết kế kết hợp với tính cá nhân hoá để tạo nên một tổng thể hài hòa và có chiều sâu.
Ngay từ khu vực sảnh và không gian sinh hoạt chung, vật liệu đá vân tự nhiên kết hợp ánh sáng gián tiếp giúp không gian trở nên sáng, thoáng và sang trọng. Các đường nét thiết kế được tiết chế, tập trung vào cảm giác “gọn – sạch – tinh”, mang lại trải nghiệm sống dễ chịu ngay từ những bước chân đầu tiên.
Đây không chỉ là một ngôi nhà để ở, mà là nơi phản ánh rõ gu thẩm mỹ và nhịp sống của gia chủ.

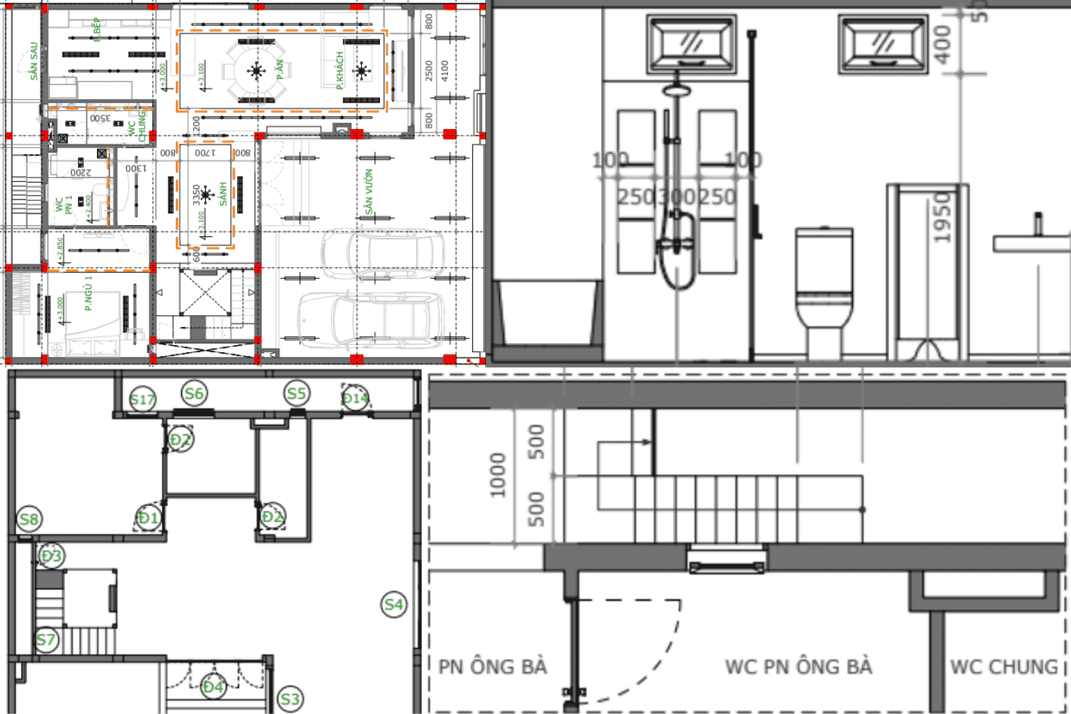
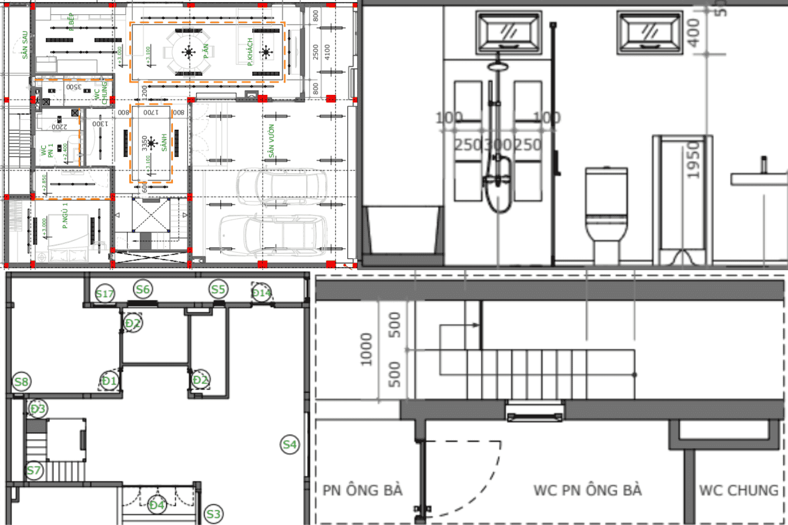
Ảnh 1: Bản vẽ 2D công trình

Ảnh 2: Phối cảnh thiết kế phòng khách & phòng bếp

Ảnh 3: Phối cảnh thiết kế phòng ngủ
*KẾT QUẢ CUỐI CÙNG
Công trình được hoàn thiện theo hướng đồng bộ từ thẩm mỹ đến công năng, với từng khu vực đều có vai trò rõ ràng.
Toàn bộ công trình hướng đến:
-
Tối ưu không gian sử dụng theo nhu cầu thực tế
-
Duy trì phong cách hiện đại, bền vững theo thời gian
-
Tạo cảm giác sống thoải mái, nhẹ nhàng nhưng vẫn có điểm nhấn riêng
Home Dũng Maxo không chỉ là một công trình hoàn thiện, mà là một không gian sống được thiết kế để đồng hành lâu dài — nơi mọi chi tiết đều phục vụ cho sự tiện nghi, thẩm mỹ và trải nghiệm sống trọn vẹn.
👉 Xem chi tiết dự án tại:
- Thi công nội thất nhà phố: TẠI ĐÂY
- Thi công công trình giải trí: TẠI ĐÂY
📩 Nhận tư vấn thiết kế & thi công trọn gói
-----------
CÔNG TY TNHH THƯƠNG MẠI XÂY DỰNG TRANG TRÍ NỘI THẤT COMPA
Văn phòng & xưởng: 9B Đường 40, P.Hiệp Bình Chánh, Thủ Đức
Website: http://trangtrinoithatcompa.com/
Hotline: 0937 299 677 - 028 627 2896
Email: cty.compa@gmail.com